|
|
|||
|
Vorderradbremsen
|
Bremszange zerlegen
|
||
|
|
|||
|
Vordere Bremszangen ausbauen
|
Bremsklötze ausbauen, wie es beschrieben
wurde.
Staubkappe mit einem Schraubenzieher vom
Gehäuse entfernen.
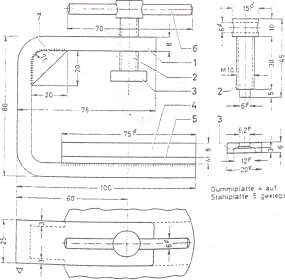
Mit der Kolbenrücksetzzange 1115890737-00 einen Kolben in der Bremszange festhalten _ und den gegenüberliegenden Kolben dann mit Preßluft herauspressen (Bild 165). Spannvorrichtung (Selbstanfertigung) in der Bremszange so ansetzen, daß die Gummiplatte die Bohrung abdichtet (Bild 166).
|
||
|
Fahrzeug vorne aufbocken und Räder abnehmen.
Bremsflüssigkeit aus dem vorderen •Bremskreis über eine geöffnete Entlüfterschraube herauspumpen.
Bremsschlauch an der Bremsleitung lösen und sofort mit geeigneter Kappe verschlies-sen.
Bremsschlauch an der Bremszange lösen,
vom Halter abnehmen und wie schon er- wähnt, die Anschlüsse verschließen. Sicherungsblech aufbiegen und beide Be- festigungsschrauben lösen. Bremszange abnehmen. |
|||
|
|||
|
|||
|
Bild 165
Ausbau des Kolbens aus der Bremszange
1 Gummiplatte an Rücksetzzange , 3 Bremszange
2 Rücksetzzange 4 Kolben
|
|||
|
|||
|
Bild 164
Schnittansicht der Bremsscheibe-Kolben und Bremszange
1 Bremsscheibe
2 Bremszange
3 Befestigungsschraube
A Sicherungsblech
5 Abdeckblech
6 Achsschenkel
9 Innensechskantschraube
10 Vorderradnabe |
|||
|
Bild 166
Masse der Spannvorrichtung zur Selbstantertigung
|
|||
|
|
|||
|
95
|
|||
|
|
|||